



Egans are delighted to present this large 5-bedroom detached house to the open market for sale.
21 The Close is excellently located in a quiet cul-de-sac in the ever popular Lakepoint development enjoying easy access to all amenities including Lakepoint Retail Park, M4 Dublin Motorway, St Colmans National School, Mullingar town centre etc.
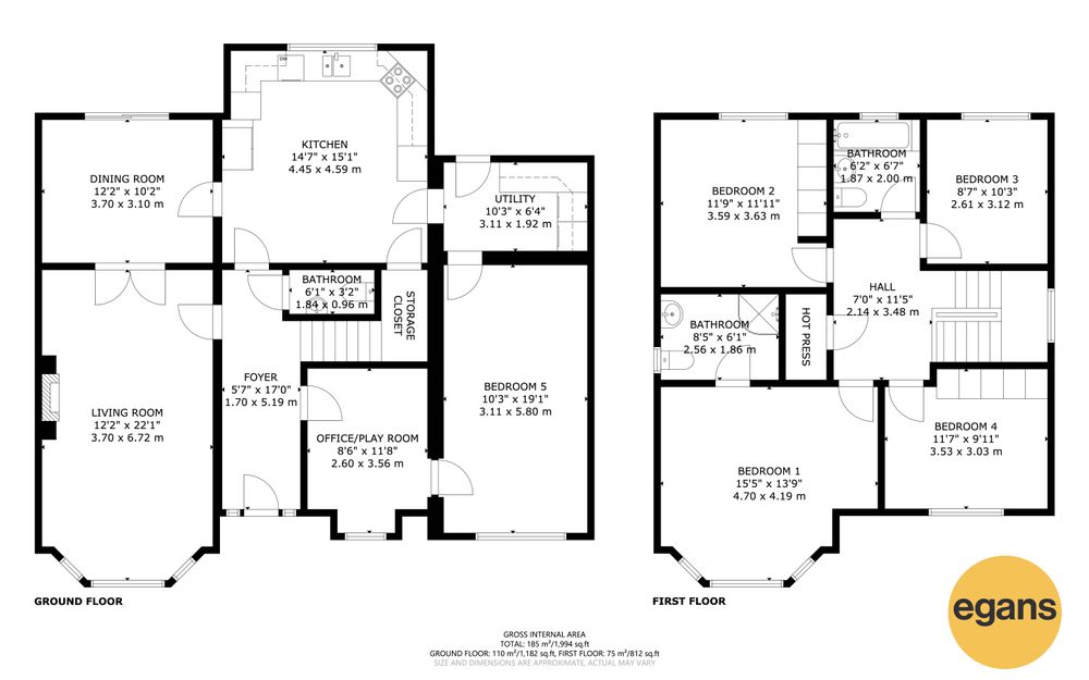
The property is in excellent condition throughout and accommodation consists of entrance hall, sitting room, dining room, kitchen, utility, office / playroom, additional living room / 5th bedroom, w/c all located on ground floor with 4 double bedrooms (master en-suite) and main bathroom located on the first floor.
This property has the benefit of a very large back garden due it is location at the end of the cul-de-sac with ample space to the front and the rear of the property.
The property is serviced with OFCH with a new condenser boiling installed in recent years and also has the benefit of an EV charger located to the front of the property.
Other improvements also made to the property in recent times include the installation of a bullet immersion heater which heats the water quickly together with lever control system installed allowing flexibility to switch heating from radiators to hot water for your convenience.
Viewing of this fine detached home is highly recommended with Egans.
21 The Close, Lakepoint Park, Mullingar, Co. Westmeath, N91 Y0H9,