



4 Bed Detached home with Self Contained 1 Bed Apartment
Property Partners O'Brien Swaine are delighted to present Somers View to the market. A beautifully appointed residence on c. 1.03 acre offering the perfect blend of countryside charm and modern living. Nestled in a peaceful rural setting and surrounded by sweeping countryside views, this exceptional home is just a short drive from all the amenities of Gorey Town Centre.
Gorey is a thriving town in North Co. Wexford home to everything you need from schools, shops, public transport, restaurants, bars, library and much more etc. The N11 motorway is easily accessible making the commute to South Co. Dublin approx. 1 hr drive away. Wexford is also home to many outstanding beaches and coastal walks, many of which area a short drive from Somers View
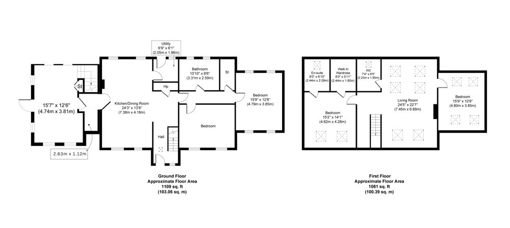
This spacious and versatile property includes a 4-bedroom residence and detached block built shed. The heart of the home is the bright and spacious kitchen/dining room, ideal for family living and entertaining. A separate utility room provides additional convenience with access to the back garden and patio area. There is a guest w.c with shower and an additional living space off the kitchen with access to garden, decking area and breathtaking views. Also on the ground floor are two generous double bedrooms and a large family bathroom featuring his and hers sinks for added luxury.
Upstairs, the cosy living area, complete with wood burning stove, is filled with natural light thanks to large Velux windows, offering panoramic views of the surrounding countryside. Two further bedrooms, including a master bedroom with walk-in wardrobe and ensuite and an additional guest bathroom complete the first floor.
Outside there is a mix of landscaped garden, patio areas, decking and grass areas for you to enjoy the beauty of the outdoors. This property also benefits from a block built shed with electricity and ample parking.
This is an exceptional home and viewing is highly recommended.
Tiled floor, cooker, hob, dishwasher, fridge freezer, hotpress
Tiled floor, plumbed for washing machine, door to back garden
Tiled floor, fitted units, cooker, washing machine, fridge, door to decking area, stairs to mezzanine
Tiled floor, W.C, Shower
Carpet, Storage cupboard
Fully tiled, his and hers sink units, bath, separate electric shower, w.c, 2 windows
Wood laminate flooring
Carpet
Wooden floor, velux windows allowing for exceptional views, stove
wooden floor, w.c, w.h.b, velux window
Wooden floor, built in wardrobes
Wooden floor, velux window, walk in wardrobe, attic access
Fully tiled, shower, w.c, w.h.b, window
Well
Septic Tank
Somers View, Somers Lane, Killowen, Gorey, Co. Wexford, Y25 X3C5,