



O Sullivan Mc Goldrick Property Plus are thrilled to present this beautiful and peaceful family owned home set in the breathtaking West Sligo countryside.
This stunning home constructed in 2007 commands bright , spacious and well proportioned living accommodation of C.158 Square Metres ( C.1700 Square Ft) and boasting a site area of C.0.7 Acres.
Set amidst the serene beauty of the Wild Atlantic Way, this exceptional home offers a combination of privacy, space and yet is only a short drive to the stunning west Sligo coastline at Easky village.
Set on a generous site with mature trees bordering the large garden, this property offers privacy while still being just a short drive from Dromore West village and its local amenities.
The interior features an open-plan kitchen, dining, and living space with a solid fuel stove, making it ideal for both family life and entertaining and its south west orientation flooding the home with natural light.
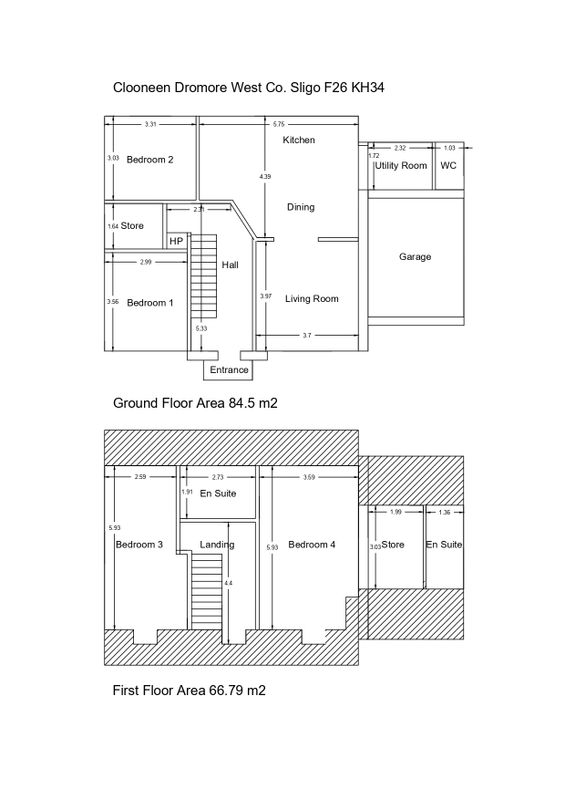
Off the kitchen is a practical utility room, with an additional WC & shower room. The home has 4 generous bedrooms (2 on the Ground Floor and 2 on the First Floor). The large master bedroom includes an en suite with an impressive walk in wardrobe.
Whether you are looking for a peaceful family residence or a scenic retreat, this property offers an unmatched combination of luxury, privacy, and space.
To arrange a viewing of this stunning property Jonathan Mc Goldrick O Sullivan Mc Goldrick Property Plus on 087-9300300
Eircode F26 KH34
To Sligo 35KM
To Ballina 24KM
To Easky 7KM
With Feature Tiled Flooring
Complete With Oak Timber Flooring & Natural Timber Stairs
With Fully Fitted Kitchen Units , Tiled Flooring , Tiled Splashback & Stunning Views over Private South West Facing Rear Garden
Complete with Oak Timber Flooring & Feature Solid Fuel Stove with Back Boiler
With Tiled Flooring
With Ample Shelving
With W/C , WHB and Complete with Tiled Flooring
With WHB , Tiled Flooring and Plumbing Installed for W/C and Bath
With Oak Timber Flooring
With Oak Timber Flooring
Complete With Timber Flooring & Feature Window
With Dual Aspect Windows & Timber Flooring
Complete with Timber Flooring
W/C , WHB & Shower Area complete with Mira Elite Electric Shower
With Timber Flooring & Dual Aspect Windows
Complete with Shelving and could lend to additional living space if desired.
Front & Rear Gardens
Garage
Oil Fired Central Heating
uPVC Double Glazed
Solid Fuel Stove with Back Boiler
Mains Water
Fibre Optic Broadband Available
Clooneen, Dromore West, Co. Sligo, F26 KH34,