
Egans are delighted to present this beautiful 4-bedroom semi detached home to the open market for sale. Excellently located in Lakepoint close to all amenities including Lakepoint Retail Park which is home to the IMC cinema amongst others whist Mullingar town centre & the M4 Dublin Motorway are within easy reach.
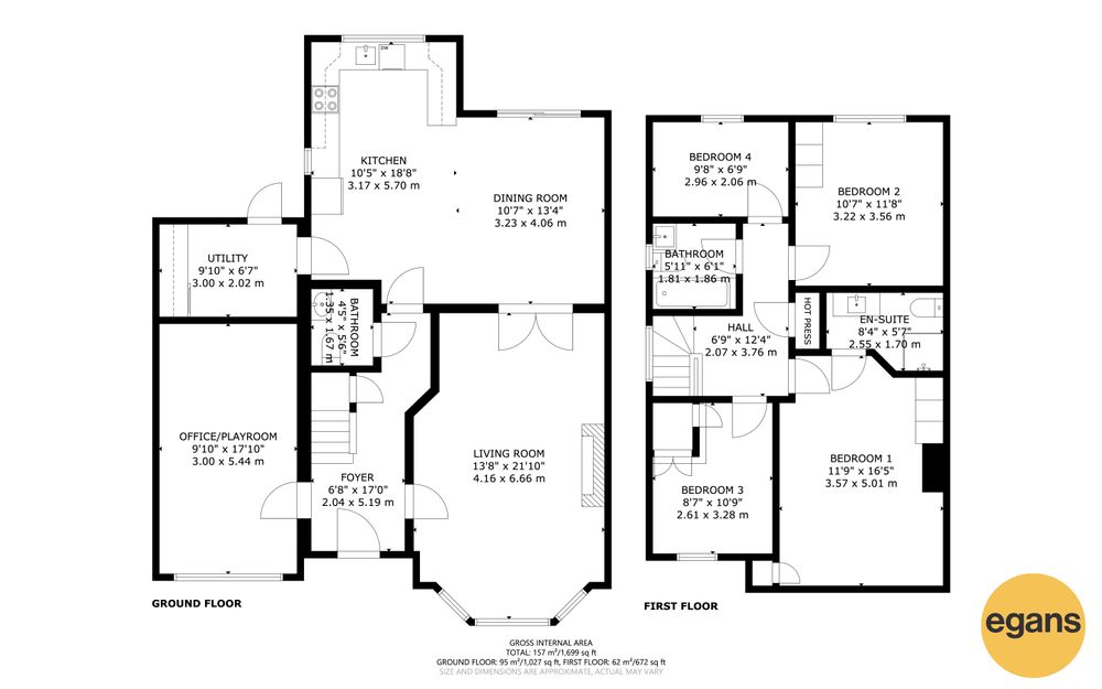
Accommodation consists of entrance hall, living room, open plan kitchen / dining area, utility, w/c, home office / playroom / 5th bedroom located on ground floor level with 4 bedrooms (master en-suite) and main bathroom located on first floor level.
No. 18 The Close has the benefit of a double driveway providing ample off-street car parking and also enjoys a host of other features including a large private back garden.
The property has a large floor area of c.1,700 sq.ft and also enjoys a quiet cul-de-sac location making it an ideal family home in one of Mullingar's best locations.
Viewing is highly recommended.
18 The Close, Lakepoint Park, Mullingar, Co. Westmeath, N91 T9N7,