51 The Park, Curragh Grange, Newbridge, Co. Kildare, W12 W685

€ 350,000
Semi-Detached - Housing Dev For Sale by Private Treaty
Floor Area
1049 Sq.ft / 97.46 Sq.m
Bed(s)
3
Bathroom(s)
3

Details

3 BED SEMI-DETACHED IN SOUGHT AFTER LOCATION

No. 51 The Park is a well-presented and attractively maintained three-bedroom semi-detached residence, ideally positioned within the established and highly regarded Curragh Grange development. The property, which was constructed in the mid 2000?s by Ballymore Homes enjoys a particularly appealing setting overlooking a large communal green to the front. The neighbourhood centre is less than a 3-minute walk with a convenience store, pharmacy and doctors all on your doorstep.

Internally, the house is finished to a very good standard throughout and benefits from a bright, well-balanced layout extending to approximately 1,049 sq. ft, designed to suit modern family living. The accommodation is comfortable and well-proportioned with excellent natural light at both ground and first-floor levels.

To the rear, the property enjoys a south-facing garden, providing excellent sunlight throughout the day and enhancing both the internal living spaces and outdoor amenity. Combined with its mature surroundings, quality presentation and desirable position within the development, No. 51 represents an excellent opportunity to acquire a home in a settled residential area that continues to be popular with owner-occupiers and families alike.

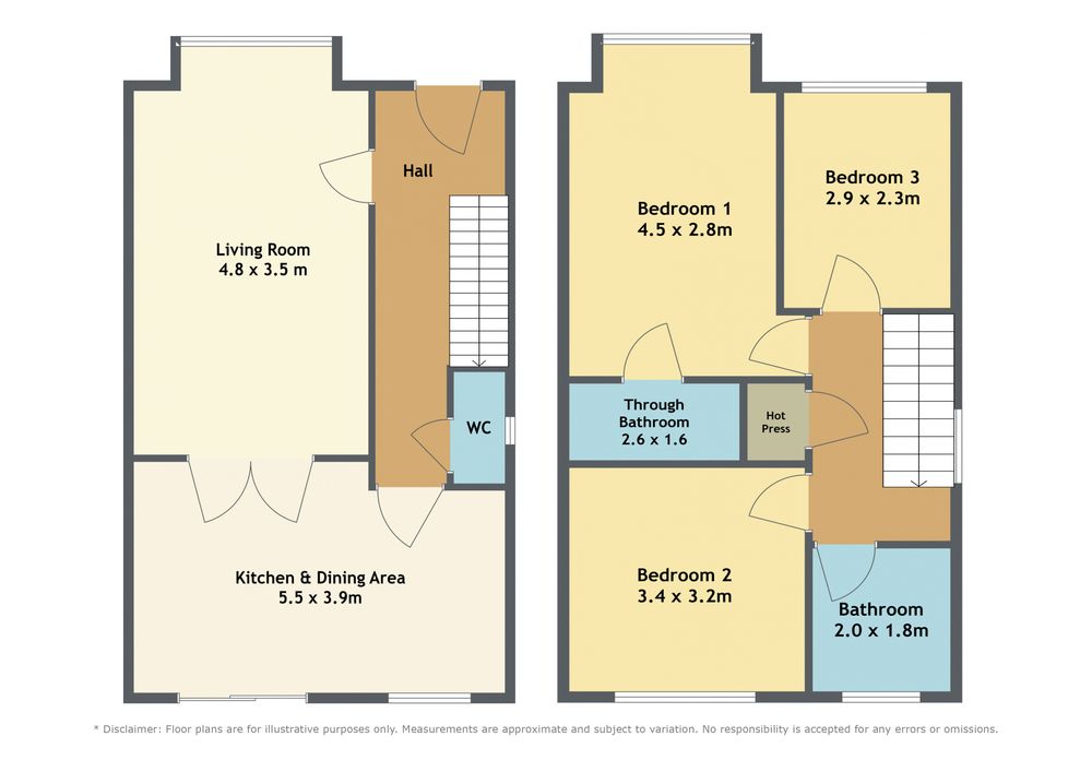
The entrance hall provides a welcoming introduction and leads to a comfortable living room positioned to the front of the property, overlooking the communal green and benefitting from excellent natural light.

To the rear, the kitchen and dining area forms the heart of the home, offering direct access to the south-facing rear garden and an ideal setting for everyday living and entertaining. A guest WC completes the ground floor accommodation.

Upstairs, there are three bedrooms, two of which share a jack and jill bathroom comprising two and a single bedroom suitable for use as a child?s room, home office, or nursery. A family bathroom completes the first-floor layout.

Newbridge is one of County Kildare?s most established and well-served towns, offering an excellent blend of residential amenities, employment opportunities, and commuter accessibility.

Curragh Grange is conveniently located close to the town centre, providing easy access to a wide range of shops, caf?s, restaurants, schools, and sporting facilities. The town is also home to the Whitewater Shopping Centre, along with a variety of leisure amenities including Newbridge Golf Club.

The nearby Curragh Plains offer a unique recreational amenity, ideal for walking, running, and outdoor pursuits, further enhancing the lifestyle appeal of the area. Newbridge also benefits from excellent transport links, with regular rail services to Dublin city centre and immediate access to the M7 Motorway, making it a highly attractive base for commuters seeking convenience without compromising on quality of life.

Accommodation

Entrance Hall (16.40 x 5.91 ft) (5.00 x 1.80 m)

The entrance hall is bright and welcoming, finished with solid oak timber flooring and providing access to the main living accommodation and staircase to the first floor.

Living Room (17.39 x 11.81 ft) (5.30 x 3.60 m)

A well-proportioned and stylish reception room featuring solid oak timber flooring and an attractive feature fireplace with cast iron inset and polished stone surround. Bespoke built-in shelving and storage units flank the fireplace, creating a strong focal point. Double doors connect through to the kitchen/dining area, allowing for excellent flow and flexibility.

Kitchen/Dining Room (12.80 x 18.04 ft) (3.90 x 5.50 m)

Located to the rear of the property, this bright and spacious kitchen/dining area is fitted with modern wall and floor units, complemented by dark worktops and tiled flooring in the kitchen zone. The dining area features solid oak timber flooring and sliding patio doors opening directly to the rear garden, making it ideal for everyday family living and entertaining.

Guest WC (5.58 x 7.22 ft) (1.70 x 2.20 m)

A conveniently located ground floor WC, finished to a practical standard.

Bedroom 1 (11.15 x 10.50 ft) (3.40 x 3.20 m)

A spacious double bedroom finished with timber flooring and benefitting from extensive built-in wardrobe storage. A large window provides good natural light, creating a bright and comfortable main bedroom.

Jack & Jill Bathroom (3.61 x 8.20 ft) (1.10 x 2.50 m)

A well-appointed Jack and Jill style bathroom accesses bedroom 1 & 2 and is fitted with modern sanitary ware and finished in neutral tiling with w.c., w.h.b. and power shower.

Bedroom 2 (15.09 x 9.19 ft) (4.60 x 2.80 m)

A well-proportioned double bedroom featuring timber flooring and built-in wardrobes. This room enjoys good natural light and comfortably accommodates a double bed and additional furniture.

Bedroom 3 (7.55 x 10.17 ft) (2.30 x 3.10 m)

A bright and versatile third bedroom, suitable for use as a single bedroom, home office, or study. Finished with timber flooring and overlooking the front of the property.

Family Bathroom (5.58 x 7.22 ft) (1.70 x 2.20 m)

The main family bathroom is fully tiled and fitted with a three-piece suite comprising a w.c., wash hand basin and bath with overhead shower. A frosted window provides natural light and ventilation.

Attic Space

The attic has a Stira stairs and is partially floored for storage.

Outside

To the front, the property overlooks a well-maintained communal green, creating a pleasant open aspect and an enhanced sense of space. To the rear, the south-facing garden provides private outdoor space with a patio area, enjoying excellent sunlight throughout the day. There is also a timber shed for storing garden implements.

Services

Gas-fired central heating.
Double-glazed windows.
Mains water and sewage.
ESB connected.
Refuse collection.

Features

  • 3-bedroom semi-detached residence.
  • Approx. 1,049 sq. ft of accommodation.
  • Attractive position overlooking a large communal green.
  • South-facing rear garden.
  • Well-established and family-friendly development.
  • Bright, well-proportioned internal layout.
  • Off-street parking.
  • Excellent commuter location.
  • Close to Newbridge town centre, schools, and amenities.
  • 3-minute walk from neighbourhood centre.
  • Easy access to the M7 motorway and rail services.

Neighbourhood

51 The Park, Curragh Grange, Newbridge, Co. Kildare, W12 W685,

Clive Kavanagh

...