
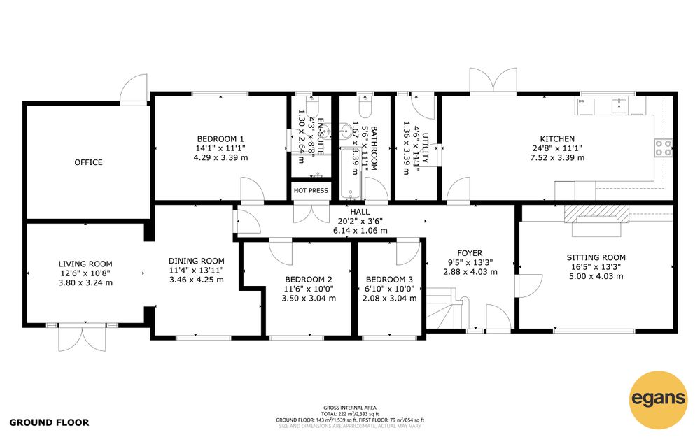
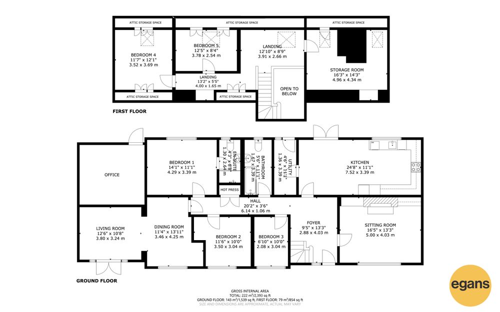
Egans are delighted to present to the market this beautiful detached bungalow which is located in a picturesque setting in the townland of Newcastle approximately 4km from Ballymahon and 1km from Center Parcs Longford Forest. This property comprises Kitchen, Sitting Room, Living/Dining Room, 5 Bedrooms (1 Ensuite), Office/Playroom, Utility Room and Bathroom all of which has been well maintained and presents in excellent condition. There is a large workshop/garage at the rear of this property which has the benefit of 2 driveways, a large patio area and landscaped 0.55 acre site. This is a prominent location just off the R392 (Mullingar - Ballymahon route) with easy links to the midlands towns of Athlone, Mullingar and Longford whilst enjoying the best of a peaceful countryside setting.
Newcastle, Ballymahon, Longford, Co. Longford, N39 VK75,