
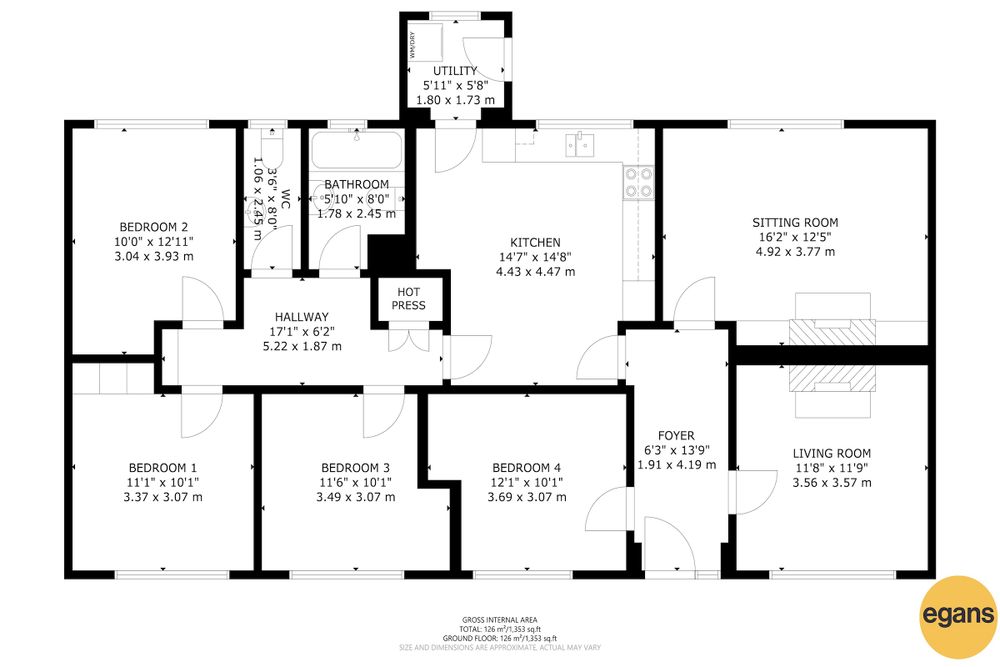
Egans are delighted to present this spacious four-bedroom bungalow in the much-sought-after area of Enniscoffey, Gaybrook. The home features a welcoming living room, practical kitchen, utility, and four well-proportioned bedrooms, and large family bathroom.
Outside, a large front garden provides excellent curb appeal, while the generous rear garden offers privacy and space for outdoor living, gardening, or play.
This charming bungalow, set in a quiet and highly desirable location, offers comfortable single-storey living with scope to modernise.
Viewing of this property is highly recommended with Egans.
OFCH
Septic tank
Enniscoffey, Gaybrook, Mullingar, Co. Westmeath, N91 T3C9