
HJ Byrne Estate Agents are proud to present this ground floor apartment set in a luxury residential development on the outskirts of the seaside town of Greystones. This sale offers you the opportunity of experiencing all the convenience of Greystones living with easy access to numerous restaurants, the seaside and harbour, retail options, schools, parks and sporting facilities. Apartment 58 is an immaculately presented spacious two bedroom apartment ideally positioned at ground floor level with the added bonus of a wonderful terrace leading off the living space which is a rare find in apartment living. This stylish home boasts light filled accommodation seamlessly combining contemporary design with practical living, offering bright, well-proportioned accommodation throughout. The interior is thoughtfully laid out, comprising a welcoming entrance hall with a generous storage facility and a separate hot press. The main living space is an impressive open-plan kitchen, dining, and living area, perfectly suited to modern lifestyles and effortless entertaining. The kitchen is well-appointed with a full range of integrated appliances, and an array of wall and floor units with ample countertop space for food prep. The spacious living area opens onto the large private terrace providing a highly desirable outdoor space. Both bedrooms are generously proportioned doubles complete with fitted wardrobes providing an abundance of storage, the primary suite boasts a sumptuous ensuite shower room. A full bathroom with extensive tiling adding a touch of hotel luxury completes the accommodation perfectly. The complex is set in meticulously well kept grounds with ample surface parking for both visitors and owners alike.
Greystones quiet justly is the Gold Medal Winner of the Worlds Most Liveable Community 2021. This picturesque postcard pretty seaside town with wonderful marina and seaside boarding a lively bustling town full of charm and just 24 kms from Dublin City Centre. Greystones really has something to offer everyone with lots of amenities that are accessible to all, the sea, town centre amenities plus mountain walks. Situated in a peaceful setting on the outskirts of the town, the Charlesland Centre is just a stones throw away providing a super range of local services including a well stocked Super Valu, chemist, a gym and take away food opportunities. The town centre is just minutes away and is home to a superb range of boutiques, shops, cafes and restaurants plus the Whale Theatre. For commuters Greystones DART station is close at hand offering a frequent service to Dublin City Centre and beyond while the M11 and M50 ensures speedy access to all surrounding areas by car. When it comes to sports and leisure Greystones has it all, with numerous golf courses creating a golfers paradise, sailing and watersports, gyms, tennis, rugby and football clubs close at hand. For those seeking more leisurely pursuits countryside walks, strolls on the beach, yoga and pilates are within easy reach.
This sale is sure to attract first time buyers, downsizers and investor alike and early viewing is highly recommended to truly appreciate all it has to offer.
Features Include
Super Location
Minutes From Local Shops and Services
Excellent Public Transport Links
BER Rating C2
Gas Fired Central Heating System
Versatile Yet Practical Layout
Private Patio Area
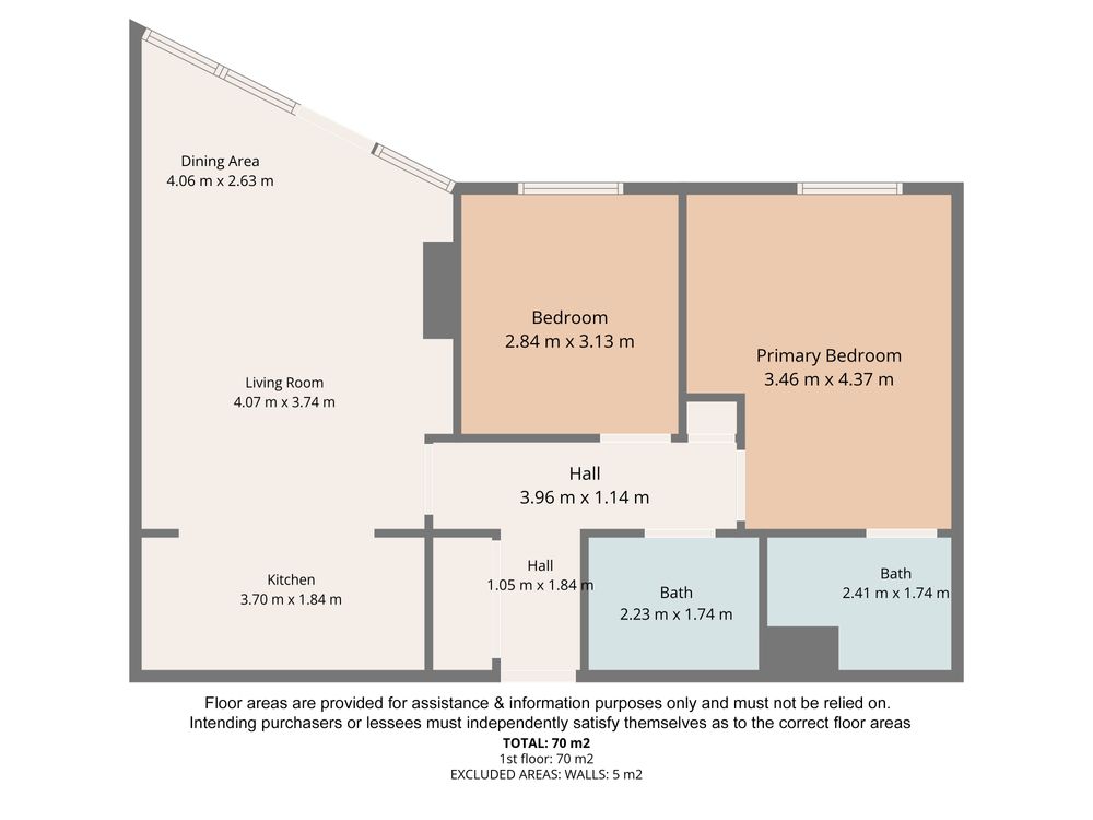
Accommodation Extending to 70 sq mtrs
Accommodation:
Entrance Hallway
Welcoming approach via spacious entrance hallway with warm oak timber flooring at foot creating a stylish yet practical flooring statement, recessed down lighters in white illuminate the hall by night. A utility area provides excellent storage and keeps the hallway clutter free. The hotpress is located here also and provides ample linen storage.
Living Room
4.1 x 5.6m
Wonderful open plan living room with ample room for dining and living room areas, the area is flooded by natural with an entire wall fully glazed from floor to ceiling drenching the room in natural light, a glazed sliding door provides access to the outside space. The warm timber flooring is continued seamlessly from the hallway adding to the sense of space and light. An excellent provision of chrome recessed down lighted illuminate the room perfectly.
Kitchen Area
1.8 x 3.6m
This well equipped kitchen is home to an excellent range of contemporary high gloss wall and floor units providing an abundance of storage with plenty of countertop space for food prep. The kitchen boasts a built in Zanussi oven, hob with extractor fan overhead plus an integrated fridge freezer and dishwasher. For ease of maintenance the kitchen is complete with a backsplash in brick wall effect ceramic tiles plus a tiled floor.
Primary Bedroom
6.2 x 3.3m
This space primary suite is again bright and airy, featuring floor to ceiling built in wardrobes plus a wonderful ensuite shower room boasting extensive tiling adding a touch of hotel luxury plus high quality sanitary ware including wc, wash hand basin with built in vanity unit below plus a double shower cubicle with glazed doors and home to an electric shower unit. The bedroom is complete with cosy neutral carpeting at foot.
Bedroom No. 2
3.2 x 3m
Double bedroom again with built in wardrobes providing plenty of storage.
Bathroom
Stylish main bathroom featuring high quality sanitary ware including wc with hidden cistern, porcelain wash hand basin set on a marble plinth plus bathroom with telephone shower and with a glazed shower screen protecting the room from splashes. A chrome plated heated towel rail keeps the room cosy and warm and again an excellent provision of recessed down lighters illuminate the room by night.
Outside
The block is set in well kept grounds with ample surface parking for owners and visitors alike. Off the living room is a wonderful cobblelock patio area with nicely maturing hedging providing excellent screening and privacy. This is the perfect space to sit back and relax and unwind or ideal for al fresco dining.
Service Charge Euro 2,200 pa
Eicode A63 CX32
Price Euro 385,000
BER Rating C2
BER Number 111317509
Video link https://youtube.com/shorts/qj2Lb_FCxM8?si=nc6-MUhQ0e8WvgUi
Any intending purchaser(s) shall accept that no statement, description or measurement contained in any newspaper, brochure, magazine, advertisement, handout, website or any other document or publication, published by the vendor or by HJ Byrne Estate Agents, as the vendors agent, in respect of the premises shall constitute a representation inducing the purchaser(s) to enter into any contract for sale, or any warranty forming part of any such contract for sale. Any such statement, description or measurement, whether in writing or in oral form, given by the vendor, or by HJ Byrne Estate Agents as the vendors agent, are for illustration purposes only and are not to be taken as matters of fact and do not form part of any contract. Any intending purchaser(s) shall satisfy themselves by inspection, survey or otherwise as to the correctness of same. No omission, misstatement, misdescription, incorrect measurement or error of any description, whether given orally or in any written form by the vendor or by HJ Byrne Estate Agents as the vendors agent, shall give rise to any claim for compensation against the vendor or against HJ Byrne Estate Agents nor any right whatsoever of rescission or otherwise of the proposed contract for sale. Any intending purchaser(s) are deemed to fully satisfy themselves in relation to all such matters. These materials are issued on the strict understanding that all negotiations will be conducted through HJ Byrne Estate Agents.
All Mains Services
Apartment 58, Concordia, Seabourne View, Charlesland, Greystones, Co. Wicklow, A63 CX32