
**Stunning Large Detached Property**
**Minutes Walk To Town**
**B1-Rated Energy Efficient Home**
**Large Gardens and Private Tennis Court**
At Byrne Malone Estate Agents, we specialise in selling unique homes and we are delighted to present this impressive four-bedroom detached family residence to the market for sale by private treaty. Tucked away in a quiet cul-de-sac on Kilbelin Lane, just a short walk from Newbridge town centre, this exceptional home is set on a large private site and enjoys a peaceful and idyllic setting. Beautifully maintained and thoughtfully designed by its current owners, the property offers an abundance of bright, spacious and stylish family-friendly living accommodation, perfectly suited to modern family life.
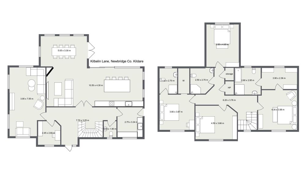
Accessed through gates, a large driveway provides ample parking for multiple cars and is framed by mature hedging and trees that enhance the sense of privacy. On entering the home, you are welcomed by a bright and spacious hallway that immediately sets the tone for the quality and space throughout.
To the left, through double doors, lies a spacious sitting room finished with wooden flooring and decorative coving, and centred around a charming fireplace with built-in stove. Multiple windows allow natural light to flood the room, creating a warm and inviting space ideal for both relaxing and entertaining. At the heart of the home is a beautifully designed open-plan kitchen, dining and living area. The modern kitchen is fitted with stylish cabinetry, quality appliances, generous worktop space and a large central island with seating, perfect for family gatherings and casual dining. The spacious dining area overlooks the rear garden, while the adjoining seating area with cosy stove creates a comfortable space for everyday living. Just off the kitchen is a large utility room with additional storage presses, along with a convenient downstairs WC. A separate office located just off the hallway completes the downstairs accommodation.
Upstairs, the carpeted stairs and landing create a sense of warmth and comfort. The first floor hosts four generously proportioned bedrooms, all finished with wooden flooring. The principal bedroom features a superb walk-in wardrobe and a beautifully styled ensuite bathroom finished with luxury fixtures and fittings. The second bedroom also benefits from its own neatly tiled ensuite. The remaining two bedrooms are bright and spacious, while a large family bathroom completes the upstairs accommodation.
Externally, the property continues to impress. The beautifully maintained gardens are framed by mature trees and shrubs and feature multiple seating areas, allowing you to enjoy sunshine throughout the day. A private tennis court is a fantastic added feature, offering a unique lifestyle element rarely found in residential properties. The extensive driveway also ensures ample parking for residents and visitors alike.
The location is exceptional, with the Curragh Plains close by, offering over 5,000 acres of open parkland ideal for walking, cycling and outdoor activities. Local primary and secondary schools are within easy reach, while the Whitewater Shopping Centre and Newbridge Train Station are both within walking distance. For commuters, the M7 Motorway is just minutes away.
Kilbelin Lane offers a rare opportunity to acquire a spacious, turn-key family home in one of Newbridge’s most desirable and convenient locations. Viewing is highly recommended to fully appreciate everything this exceptional home has to offer.
Kilbelin Lane, Kilbelin, Newbridge, Co. Kildare, W12 XP38