
At Byrne Malone, we take great pride in presenting distinctive, character-filled homes, and we are delighted to introduce Baltracey House, an exceptional residence offering approximately 270 sqm of beautifully appointed accommodation set on 0.44 acres of expertly landscaped gardens.
This impressive architect designed home began life as a stone cottage in 1927 and since has been transformed to the magnificent home you see today - finished to an exacting standard where no detail has been overlooked, with high-end finishes and materials, quality craftsmanship and thoughtful design evident throughout.
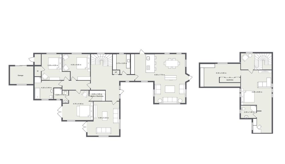
Upon entering, the spacious and light filled hall presents an immediate sense of grandeur, with its high ceilings and feature window enhancing the space, with a contemporary crafted oak staircase providing a distinguished focal point. To the left of the hall, a spacious multi-aspect reception room with double patio doors leading to the garden and a cosy fuel burning stove at its heart.
The living accommodation flows back into the hall, where a sleek, modern kitchen opens seamlessly to a dining area and living space. These rooms are subtly defined by a central chimney breast housing a cosy fuel burning stove. The multi aspect windows continue the homes signature theme, drawing an abundance of natural light through, creating a wonderful setting for both relaxed living and effortless entertaining. The kitchen features newly installed units with solid Shiva Granite countertops and integrated appliances and is further enhanced by a generously sized utility room. This practical space is fully fitted with base and eye level units and accommodates an American style fridge freezer alongside the laundry appliances.
Moving across the hall along the solid oak floors you will find the bedroom accommodation. The principal bedroom suite comprises a beautifully appointed double bedroom with patio doors opening directly onto the garden. It is further enhanced by a superbly finished, fully tiled en suite complete with a walk in shower. Completing the space, is a walk in wardrobe with full height hanging and bespoke storage, creating an exquisite dressing space. Moving on to the main bathroom, you are greeted by another generously proportioned space, finished in Travertine tiling and fitted with pristine white sanitary ware. The room features both a deep-set bath and a separate shower. The remaining two downstairs bedrooms are both double size with extensive fitted wardrobe space with lovely outlook onto the rear of the property.
Upstairs the space and style continue with a landing boasting expansive views of the surrounding countryside which leads to a most fantastic multi-functional space. The generous double dormer bedroom is flanked by an amply fitted wardrobe area, all bathed in light from an array of Velux windows. To the rear, a versatile area is currently arranged as a home office, while an elegantly tiled en suite shower room completes this impressive space.
One of the most special features of this home is the magnificent garden which wraps around the house and enjoys the utmost of privacy. Mainly laid in lawn, the garden has been masterfully landscaped to include raised flower beds, vegetable patches, neatly pruned mature beech hedging and an array of mature trees. The driveway is approached through wrought iron electric gates and bordered by traditional stone wall that echoes the brick detailing on the house itself. Two beautifully arranged patio areas, positioned to capture the sun throughout the day, are finished in timeless Limestone paving with elegant brick accents - both perfect settings for summer lunches, evening barbecues, and relaxed outdoor gatherings in the warmer months.
Although Baltracey House enjoys a beautiful countryside setting, it still remains supremely convenient to Naas town and all it has to offer, and for Dublin commuters, the edge of town location provides exceptionally quick access to the N7 and N81! Naas offers an exceptional selection of amenities, with everything from boutique shops, big name supermarkets, respected primary and secondary schools, parks, sports clubs, vibrant pubs and an excellent choice of restaurants, all within easy reach. For racing enthusiasts, Punchestown Racecourse is almost on the doorstep, while golfers will appreciate the close proximity of both Craddockstown and Naas Golf Clubs. Public transport is also well catered for, with national bus routes available from Naas Main Street and the Naas/Sallins train station just a short drive away.
This truly exceptional detached residence offers a rare opportunity for those seeking a substantial home within a mature and wonderfully private setting and we thoroughly recommend viewing!
Oil fired central heating
Own Well with new submersible water pump and pressure tank (no water charges)
Modern septic tank with extra capacity tank
Zappi electric car charging point
Baltracey House, Eadestown, Naas, Co. Kildare, W91 A6YW